Mixed Use/Museum - 2021 - Camden, London

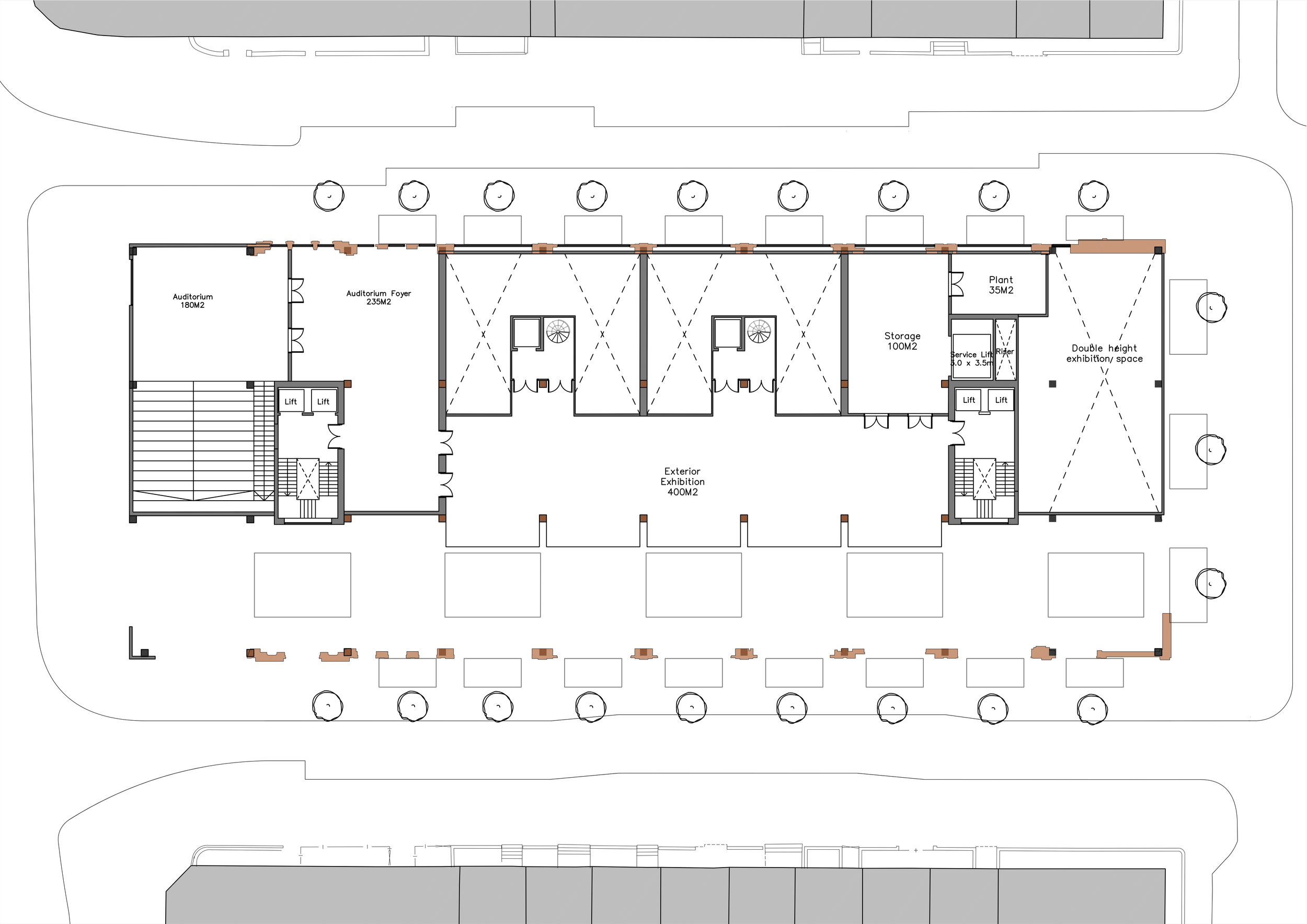
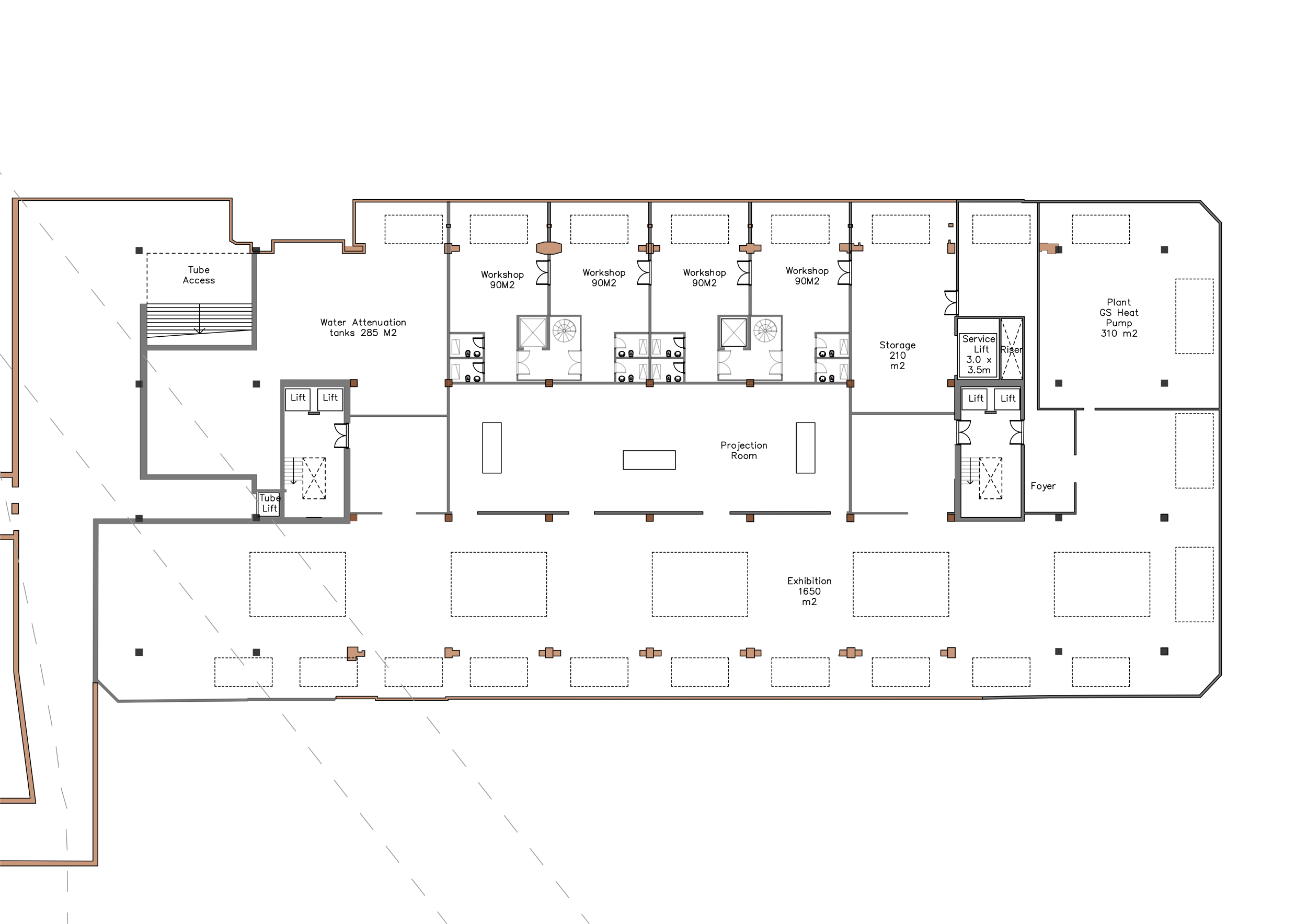
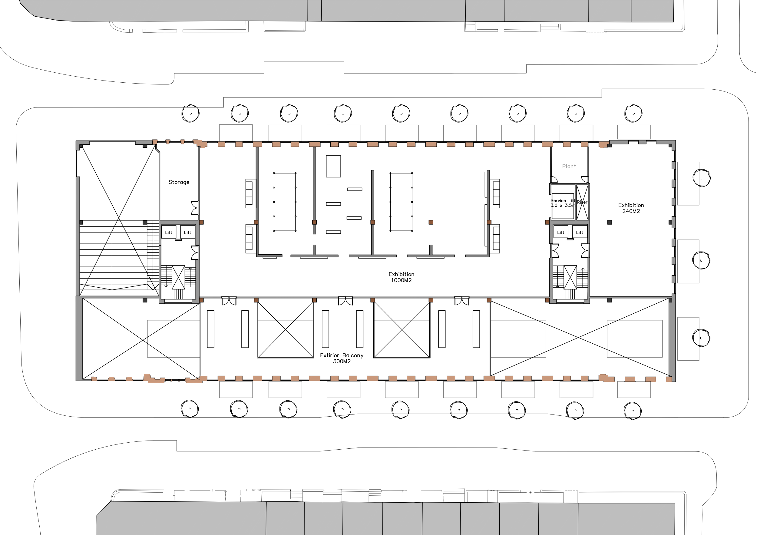
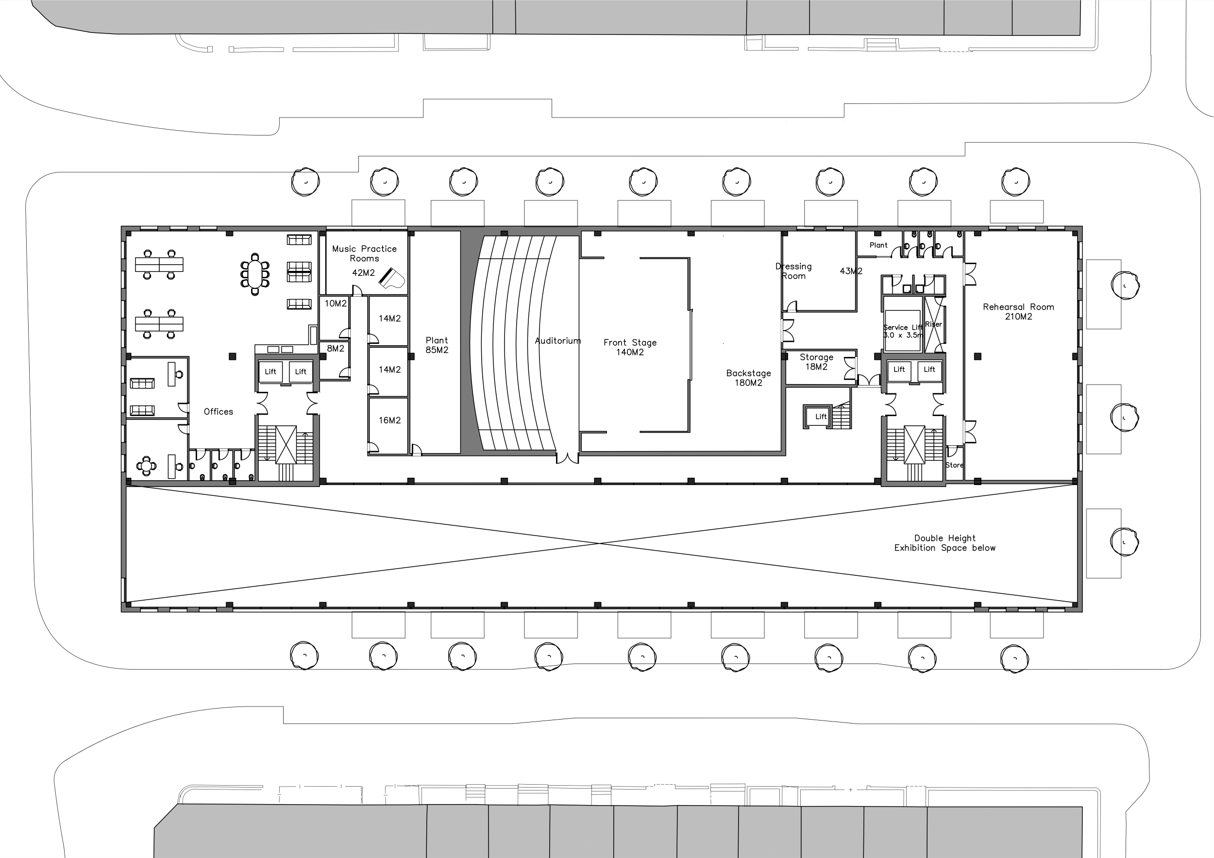
The Migration Museum explores complex relationships between racism, race and migration through an engaging and varied exhibition programme. By experiencing diverse and deeply individual stories, visitors are encouraged to to find their own answers, share their thoughts and opinions, and engage in constructive dialogue on some of today’s most pressing issues.

TECTONIC SECTION

Environmental Strategy

In winter, underfloor water heating, provided by a ground source heat pump, would make up for any fabric heat losses. The underfloor heating system has a low operating temperature, allowing the ground source heat pump to run more efficiently.

In summer, this system can be reversed to provide radiant floor cooling.

Hot water for the cafe kitchen (basement) and restaurant kitchen (sixth floor) is provided by an air source heat pump on the roof. The heat pump supplies two thermal stores, which in turn supply the hot taps. This reduces the heat pump’s running time.

WC’s on each floor have a relatively low and infrequent hot water demand, therefore, local immersion heaters were chosen rather than using the thermal store supply. This reduces heat loss in the pipe network, and reduces the size of the thermal store and ASHP.

Previous
Previous

The Garden Shed

Next
Next

Powerhouse