Library - 2020 - Docks, Bristol

This project involved the design of a public library on the Bristol docks. My design process started by assessing the function which library’s serve in our modern society.

With the internet making knowledge instantly accessible, my personal experience with library’s involves them as social workspaces, a place I would often go to get work done and interact with others. However, this use case would often neglect the books within the library and this was true for most people around me. I thought about how the design of the building could encourage the use of books and this was the basis of my scheme

Technical Drawings

 

Site Plan

The building plays a role in connecting the V-shed with the Lloyds office, it carries on the existing colonnade, promoting use of the amphitheatre whilst providing seating.

Ground Floor Plan

 

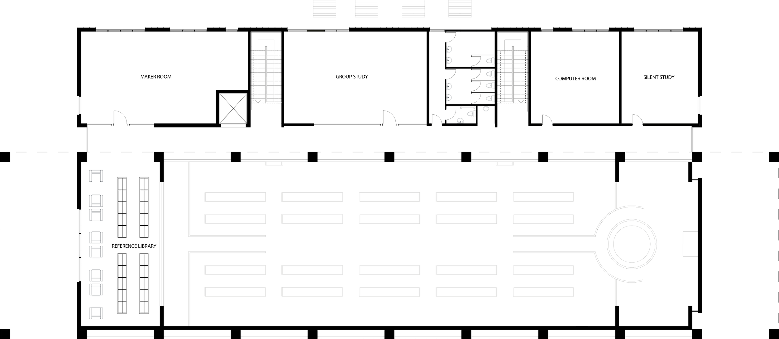
First Floor Plan

 

The main form was derived from two sperate spaces; A dominant library space, and a subsidiary working space. Where these two spaces meet an open circulation space is created, the gable roof of the library space extends down to the workspace, asserting the hierarchy.

 
 
 
 
Previous
Previous

Powerhouse

Next
Next

Museum