Social Housing - 2025 - Thiruvananthapuram, India

Rooted in personal memory and set in the heart of Thiruvananthapuram, this project rethinks Kerala’s rapid shift to high-density living by challenging generic concrete housing, proposing a climate-responsive, community-focused model that reconnects modern life with cultural traditions of space, ritual, and shared living.

Transcript

“That old house was my favourite; the north and south rooms, the kitchen, the sit-out. My house had everything I liked. I lived there for many years with my husband, who would go to work while I raised my kids at home.“

“When my elder sister was sick, she stayed here for about four months. I still remember asking her, sister I'm looking after you now, who will look after me, she jokingly replied, you’ve got kids to look after you haven’t you! – I still laugh thinking about that moment.”

“I used to pray at the sit-out, it was nice hearing the rain”

“The whole house was decorated for my daughter’s wedding there were so many people there.”

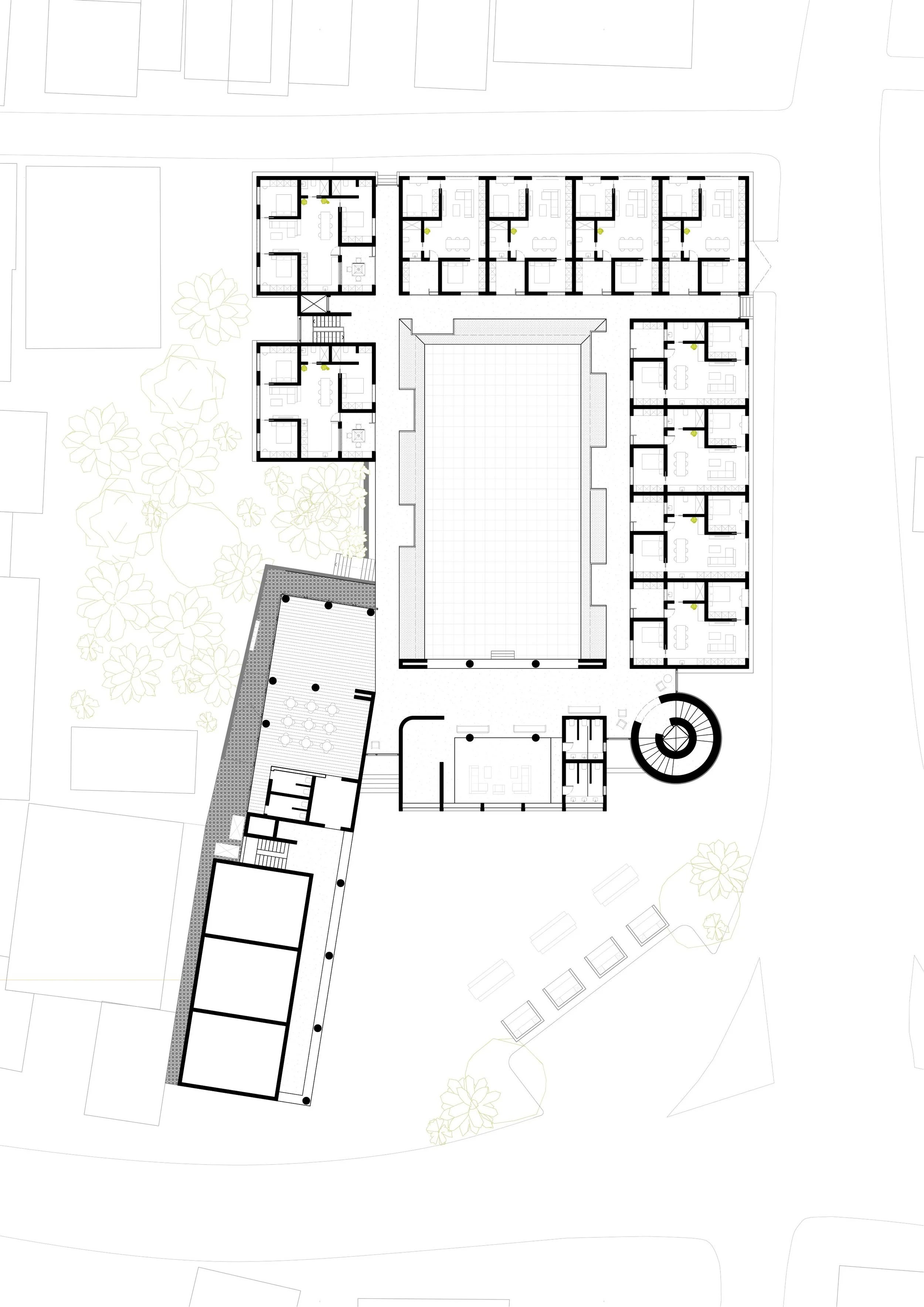
Site Plan

Next
Next

Extract, Distribute, Relax.